18+

Быть или не быть? Во Владимире обсуждают 3 глобальных перемены в облике центра

15 июля 2020, 11:54
События

Сразу несколько участков в историческом центре Владимира предлагает благоустроить мэрия города. Что конкретно планируют поменять и реально ли это вообще сделать?

Продолжение Большой Московской истории

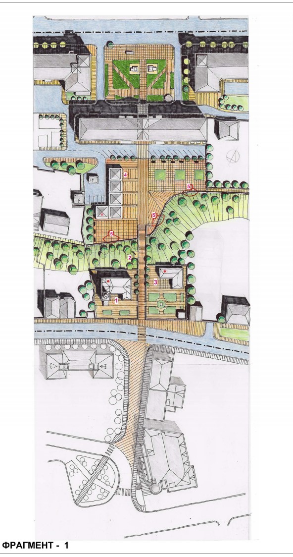
На сайте мэрии появилось несколько проектов планировки пешеходных пространств и смотровых площадок в центре города. Самый масштабный участок затрагивает уже существующую пешеходку на Георгиевской. Сейчас она заканчивается около кузницы Бородиных, но по плану ее могут продлить к Музею ложки и ресторану «Панорама», обогнув при этом строящуюся церковь. В итоге пешеходная зона выйдет на Большую Московскую.

Мэрия предлагает обсудить проекты новых общественных пространств в центре Владимира

Фонтан, парковочная зона, общественное пространство, новые смотровые площадки и выставочный комплекс — все это будет находиться буквально в шаговой доступности.

Пешеходка у вокзала

Пространство от гостиницы «Владимир» до Вокзального спуска тоже хотят облагородить. Зелень, пешеходная зона, видовые площадки, единый стиль, никаких глухих заборов у лестницы — звучит заманчиво, на плане тоже выглядит неплохо. А рядом, на Карла Маркса, Железнодорожной и у Вокзального переулка, хотят разбить скверы со столиками, скамейками и беседками.

Мэрия предлагает обсудить проекты новых общественных пространств в центре Владимира
Мэрия предлагает обсудить проекты новых общественных пространств в центре Владимира
Мэрия предлагает обсудить проекты новых общественных пространств в центре Владимира

Девическая эпопея

Многострадальную Девическую улицу снова внесли в планы. Снова пешеходная зона и парковки, деревья. Сколько раз там уже планировали самые разные варианты общественных пространств? Пока что ничего не меняется.

Мэрия предлагает обсудить проекты новых общественных пространств в центре Владимира
Мэрия предлагает обсудить проекты новых общественных пространств в центре Владимира

Не слишком ли радужно все выглядит и в этот раз? Да и с чего бы сейчас, когда все говорят о кризисе, выкатывать такой большой и явно дорогостоящий план? Сергей Егоров, сооснователь проекта «Владимир будущего», вообще сомневается в новизне этой затеи:

— Проект старый, судя по всему, — рассказывает Сергей. — Если обратите внимание, на снимках еще нет гостиницы «Панорама», которую построили пару лет назад. Предполагаю, что мэрия просто решила достать с полки проект и вызвать бурную реакцию. Но до конца я в этом не уверен — такие масштабные работы стоят не один десяток миллионов рублей.
Мэрия предлагает обсудить проекты новых общественных пространств в центре Владимира

Проект и правда поражает размахом. Тот же план благоустройства Суздаля к юбилею потребовал огромных денег и волевого решения. Что же будет во Владимире? По опыту предыдущих инициатив мы уже знаем, что от красивой картинки до реального изменения местности проходит много времени. Да и в итоге все выглядит совсем не так, как предполагалось. Взять хотя бы сквер на Чайковского и сравнить с планом. Есть ли основания надеяться, что в этот раз что-то будет иначе?

— Вообще, конечно, все реально, если захотеть, — считает Сергей Егоров. — Надо просто актуализировать проект в соответствии с современными подходами к благоустройству, узнать мнение горожан, привлечь их к доработке идей. Речь именно о соучаствующем проектировании, а не общественном обсуждении через сайт мэрии с призрачной вероятностью того, что комментарии и замечания примут к сведению.

Сейчас проекты висят на официальном сайте, предложения по ним принимаются до 1 августа. Другое дело, что разобраться в них получится не у каждого. Но вы все равно попробуйте, вдруг именно ваше мнение учтут в мэрии.


«Ждун 2» в кино! Космическое приключение, где на кону судьба Земли
«Ждун 2» в кино! Космическое приключение, где на кону судьба Земли Афиша
Индекс шашлыка. Чем полакомиться на майские праздники и не разориться?
Индекс шашлыка. Чем полакомиться на майские праздники и не разориться? События
Попались в нейросети: какие семь фильмов, снятых во Владимирской области, «зашифровал» ИИ?
Попались в нейросети: какие семь фильмов, снятых во Владимирской области, «зашифровал» ИИ? Тесты
Когда океан и облака не предел. Семья владимирских дайверов посетила Кейптаун, Дурбан и Мозамбик
Когда океан и облака не предел. Семья владимирских дайверов посетила Кейптаун, Дурбан и Мозамбик Везде свои
Вкус на 80% состоит из запаха. «Slovno в мае» представили десерт NOSEHOC про то, где рождается вкус
Вкус на 80% состоит из запаха. «Slovno в мае» представили десерт NOSEHOC про то, где рождается вкус События
Ихтиозавры в Муроме: дорожники пофантазировали, как выглядела бы трасса М-12 миллионы лет назад
Ихтиозавры в Муроме: дорожники пофантазировали, как выглядела бы трасса М-12 миллионы лет назад События
Покрова на Нерли готовят к реставрации, а на Золотых воротах обнаружили монументальную живопись
Покрова на Нерли готовят к реставрации, а на Золотых воротах обнаружили монументальную живопись События
Во Владимире прошел праздник «Под звуки скорости» от «Техцентра Гранд»
Во Владимире прошел праздник «Под звуки скорости» от «Техцентра Гранд» События
Музыкант, который аккомпанировал «Сестренке» и выступал со Шнуровым: «На пиле играть — как петь»
Музыкант, который аккомпанировал «Сестренке» и выступал со Шнуровым: «На пиле играть — как петь» От фольклора до хардкора
Мусс из манной каши, дровяные лепешки, куженьки с творогом: вау-завтраки в гранд-бистро «Меряне»
Мусс из манной каши, дровяные лепешки, куженьки с творогом: вау-завтраки в гранд-бистро «Меряне» #ЗАВТРАКНЕДОМА
Даешь ЗОЖ! Почему Юрьевец — наиболее подходящий район для любителей активной жизни?
Даешь ЗОЖ! Почему Юрьевец — наиболее подходящий район для любителей активной жизни? Ключ для новосела
Владимирский блогер приняла участие в новом реалити «Звёздные игры. Таиланд»
Владимирский блогер приняла участие в новом реалити «Звёздные игры. Таиланд» События
Единый тариф в топку! Билеты в автобусах и троллейбусах Владимира теперь стоят по-разному
Единый тариф в топку! Билеты в автобусах и троллейбусах Владимира теперь стоят по-разному События
Разрыв сердечка. Во владимирском доброцентре организовали выставку пушистой малышни
Разрыв сердечка. Во владимирском доброцентре организовали выставку пушистой малышни События
Не просто концерты. Во Владимире пройдет первый фестиваль, объединивший музыку, балет и слово
Не просто концерты. Во Владимире пройдет первый фестиваль, объединивший музыку, балет и слово События
Усадьба Храповицкого в Муромцеве или экотропа в Мещёре? Куда поехать на майские праздники
Усадьба Храповицкого в Муромцеве или экотропа в Мещёре? Куда поехать на майские праздники События
«Более разрушительный, чем зимний буран!» Эксперты дали оценку погодному развороту
«Более разрушительный, чем зимний буран!» Эксперты дали оценку погодному развороту События
Наряд Красной Шапочки, образы в духе Гэтсби и Марии-Антуанетты из гардероба Алины Фадеевой
Наряд Красной Шапочки, образы в духе Гэтсби и Марии-Антуанетты из гардероба Алины Фадеевой Свой стиль
Нестареющая классика рока: трибьют Scorpions и другие концерты недели
Нестареющая классика рока: трибьют Scorpions и другие концерты недели Афиша
«Ангелы Ладоги» и «Коммерсант» — фильмы на больших экранах Владимира, сюжет которых не отпускает
«Ангелы Ладоги» и «Коммерсант» — фильмы на больших экранах Владимира, сюжет которых не отпускает Афиша
Для улучшения работы сайта и его взаимодействия с пользователями мы используем файлы cookie и сервисы Яндекс.Метрика и LiveInternet. Продолжая работу с сайтом, вы даете разрешение на использование cookie-файлов и согласие на обработку данных сервисами Яндекс.Метрика и LiveInternet.
Вы всегда можете отключить файлы cookie в настройках браузера.